На жаль всі квартири з данним плануванням продані
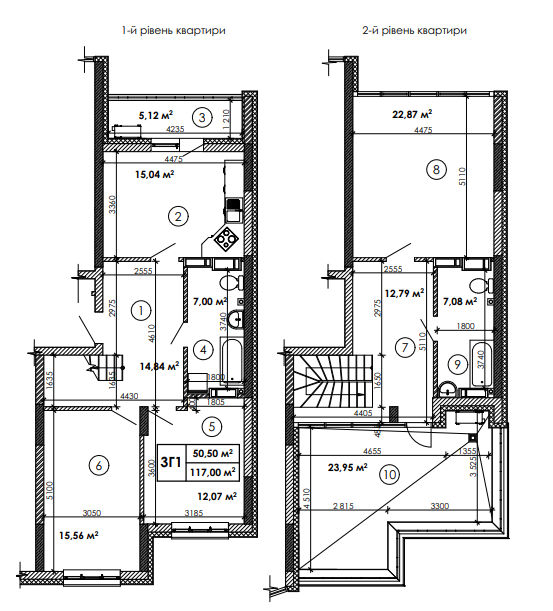
Дворівнева квартира 117 м² в ЖК Каховська, Київ
Загальна площа117 м²
Поверхи25 / 25
Житлова площа50.5 м²
Площа кухні15.04 м²
2.59 млн Грн
/ 22 100 грн/м²
Інші планування дворівневих квартир, ЖК Каховська
Помітили невідповідність? Повідомте нам
Розташування
Адресавул. Каховська, 60
Найближчі станції метроЛівобережна
Найближчі орієнтириПарк Перемоги, Лісопарк "Берізка", Долобецький острів, "Сад каміння" в Парку Перемоги, Гідропарк
Loading map...

Купуй квартиру на Domik.ua
Широкий вибір квартир від власників, забудовників та ріелторів
Детальніше
- Новобудови в Україні
- Київ
- Дніпровський район
- ЖК Каховська
- Планування дворівневої квартири 117 м²