Подати оголошення
Дворівнева 164.2 м² в ЖК Олімпійський від 22 000 грн/м², Дніпро

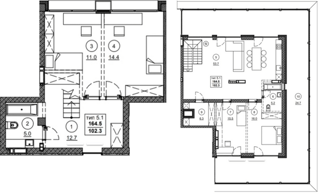
Дворівнева квартира 164.2 м² в ЖК Олімпійський, Дніпро

Загальна площа164.2 м²
Поверхи9 / 9
3.61 млн Грн
/ 22 000 грн/м²
+380 (98) 099 77 44Дзвонити

Інші планування дворівневих квартир, ЖК Олімпійський

Дворівнева 121.3 м² в ЖК Олімпійський від 22 000 грн/м², Дніпро
Ціна:
II квартал 2022
2.67 млн Грн121.3 м²
Поверх 9 / 9
Ціни на дворівневі від забудовника актуальні на 16.02.2022
Помітили невідповідність? Повідомте нам
Баловська будівельна компаніяБаловська будівельна компанія
+380 (98) 099 77 44Дзвонити

Розташування

Адресабул. Кобзаря, 3
Найближчі орієнтириКуряче озеро, Видний ринок, Березинський ринок
Loading map...

Задайте питання забудовнику

Отдел продаж квартир
Авторський канал ріелтора в Іспанії
Знайомтесь з Бенідормом, нерухомістю та стилем життя. Новобудови регіону, аналітика, інвестиції
Детальніше
+34624407828xxxx
РІЕЛ

РІЕЛ

93 будинки будують в 14 ЖК
46 готових будинків в 25 ЖК з 2013 року
Київміськбуд

Київміськбуд

61 будинок будують в 21 ЖК
167 готових будинків в 76 ЖК з 2010 року
Blago

Blago

60 будинків будують в 15 ЖК
24 готових будинки в 5 ЖК з 2013 року
Трест Жилбуд-1

Трест Жилбуд-1

59 будинків будують в 11 ЖК
181 готовий будинок в 36 ЖК з 2012 року
Comfort Life

Comfort Life

54 будинки будують в 9 ЖК
50 готових будинків в 10 ЖК з 2012 року