Подать объявление

Бассейн на крыше дома в Перу

Бассейн на крыше дома в Перу
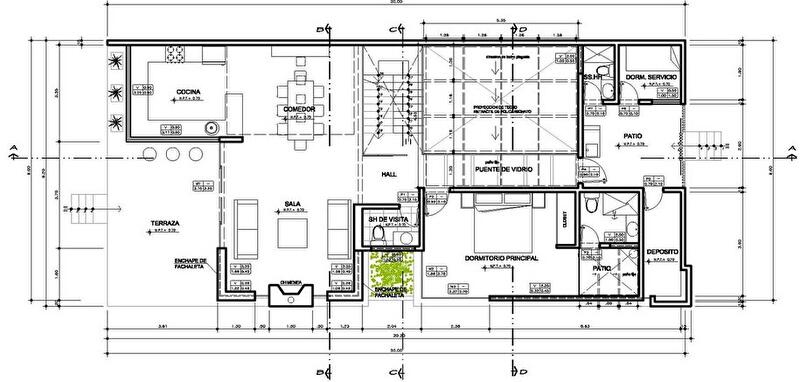
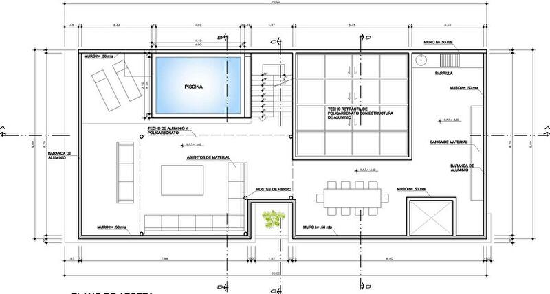
Проект частного дома Casa Viva был спроектирован компанией Gomez de la Torre & Guerrero Arquitectos и расположен в Перу.

Больше похожий на придорожный бар или кафе, этот трехэтажный дом примечателен своей компактностью и собранностью. Все помещения тесно интегрированы с улицей и просматриваются извне. Внутри постройки, на цокольном этаже под открытым небом располагается гостиная зона. Причем потолок над гостиной является сдвижным, и при необходимости его можно закрыть. На первом этаже размещены спальные комнаты, а крыша дома служит прекрасной лаунж зоной с мягкими диванами и бассейном, где помимо прочего можно расположить несколько лежаков и гриль для барбекю.

Оцените статью
0 голосов

Читайте также

SFERALINE: комплексный подход к электроинфраструктуре объектов «под ключ»

SFERALINE: комплексный подход к электроинфраструктуре объектов «под ключ»

Рынок недвижимости Украины 2025: тенденции и возможность купить квартиру в Alliance Novobud

Рынок недвижимости Украины 2025: тенденции и возможность купить квартиру в Alliance Novobud

1
В Броварах стартовали продажи квартир финального дома жилого комплекса «Лесной квартал»

В Броварах стартовали продажи квартир финального дома жилого комплекса «Лесной квартал»

Поделитесь вашим мнением
0 комментариев
Купуй квартиру на Domik.ua
Широкий вибір квартир від власників, забудовників та ріелторів
Подробнее