Подать объявление

Cтильные офисы: INNOCEAN в Германии

Cтильные офисы: INNOCEAN в Германии
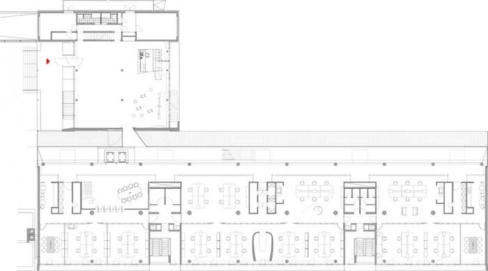
Ippolito Fleitz Group оформили интерьер офиса компании INNOCEAN во Франкфурте.

Международное рекламное агентство Innocean со штаб-квартирой в Корее в рамках европейского продвижения открыло филиал в Германии, и пространство нового  офиса должно было отразить боевой дух молодой команды и предусмотреть различные направления деятельности агентства.

 Динамизм и движение - ключевые особенности интерьерной концепции -  охватывают сотрудников и посетителей, когда они входят в просторный приемный зал. Дизайн разработан как непрерывный поток, проходящий через открытые рабочие зоны и библиотеку для сотрудников вплоть до тренажерного зала на пятом этаже, который предлагает удивительный вид на Франкфурт.

Многоугольные пространственные элементы и широкий ассортимент материалов представляют высокие стандарты и имидж самого агентства. Открытые и прозрачные рабочие пространства в сочетании с полуобщественными зонами и полностью изолированными конференц-блоками способствуют творческой и коммуникативной рабочей атмосфере.

Оцените статью
0 голосов

Читайте также

SFERALINE: комплексный подход к электроинфраструктуре объектов «под ключ»

SFERALINE: комплексный подход к электроинфраструктуре объектов «под ключ»

Рынок недвижимости Украины 2025: тенденции и возможность купить квартиру в Alliance Novobud

Рынок недвижимости Украины 2025: тенденции и возможность купить квартиру в Alliance Novobud

1
В Броварах стартовали продажи квартир финального дома жилого комплекса «Лесной квартал»

В Броварах стартовали продажи квартир финального дома жилого комплекса «Лесной квартал»

Поделитесь вашим мнением
0 комментариев
Авторський канал ріелтора в Іспанії
Знайомтесь з Бенідормом, нерухомістю та стилем життя. Новобудови регіону, аналітика, інвестиції
Подробнее
+34624407828xxxx