Подать объявление

Дом на пляже

Дом на пляже
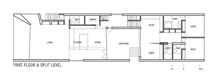
Расположенный на плотно застроенной пляжной территории в Южной Калифорнии, дом Vault House оспаривает типологию, обычную для узких прибрежных участков.

Вместо того, чтобы ориентировать постройку на океан одним фасадом, несколько прозрачных пространств внутри основного объема предлагают множество вариантов обзора из дома во время захвата естественного света из различных углов.

В простой прямоугольный вытянутый объем архитекторы бюро Johnston Marklee поместили серию однонаправленных сводчатых пространств, что позволило  расширить обзор океана от фасада с видом на пляж на запад, через улицу к восточной границе участка.

Дом был спроектирован в соответствии с ограничениями прибрежной комиссии Калифорнии, которые требуют установку жилой постройки на 2 метра от земли для защиты от наводнения.

Оцените статью
0 голосов

Читайте также

SFERALINE: комплексный подход к электроинфраструктуре объектов «под ключ»

SFERALINE: комплексный подход к электроинфраструктуре объектов «под ключ»

Рынок недвижимости Украины 2025: тенденции и возможность купить квартиру в Alliance Novobud

Рынок недвижимости Украины 2025: тенденции и возможность купить квартиру в Alliance Novobud

1
В Броварах стартовали продажи квартир финального дома жилого комплекса «Лесной квартал»

В Броварах стартовали продажи квартир финального дома жилого комплекса «Лесной квартал»

Поделитесь вашим мнением
0 комментариев
Авторський канал ріелтора в Іспанії
Знайомтесь з Бенідормом, нерухомістю та стилем життя. Новобудови регіону, аналітика, інвестиції
Подробнее
+34624407828xxxx