Подать объявление

Дом в конверте

Дом в конверте
Особняк с необычными фасадами в футуристическом стиле представили словенские архитекторы из OFIS Arhitekti.

Перфорированные металлические панели с крестообразными узорами на внешних стенах трехэтажного дома похожи на космические щиты. Проект получил название  The Villa Criss-Cross Envelope.

Вилла расположена в пригороде Любляны. Улица, на которую выходит фасад, проходит перпендикулярно к древней Римской крепостной стене. Исторический объект был восстановлен в 1930 году словенским архитектором и градостроителем  Жозе Плечником, чье влияние на внешний вид Любляны сравнимо с ролью Антонио Гауди в Барселоне.

Особенностью этой стены является арка, помещенная в треугольник из камня, так называемая «пирамида». Здание, которое здесь находилось ранее, как бы касалось оси этой пирамиды, поэтому архитекторы попытались воссоздать этот прием и в новом доме.

“Новая структура здания включает в себя существующую подпорную стену вдоль улицы. Благодаря чему новый дом сохраняет исходное положение на улице и участвует в осевом равнении на пирамиду”, - объясняют архитекторы  Рок Оман (Rok Oman) и Спела Видечник (Spela Videcnik).

Внешняя часть дома состоит из прямоугольных конструкций в перфорированной металлической оболочке. Перфорированные панели являются своеобразным щитом: пропускают внутрь здания достаточное количество света, но защищают от любопытных взглядов соседей или прохожих на улице – такова главная задумка архитекторов из   OFIS.

Главный вход в дом расположен в одном из нескольких квадратных углублений в кубе-фасаде. Остальные же формируют вход на террасу и пару угловых балконов на верхнем этаже.

Крестообразные арматурные подпорки, которые поддерживают панели, служат дополнением геометрической составляющей фасадов и объясняют название дома – The Villa Criss-Cross Envelope.

Использование перфорированного материала нашло свое продолжение и в интерьере. По словам архитекторов, это создало абстрактную интерпретацию текстуры классических вилл в историческом пригороде Любляны. «Достичь иллюзии глубины мы решили за счет двойных перфорированных панелей, окрашенных в черный цвет. Они увеличили тени и отражения палитры натуральных бежевых оттенков в интерьере», – рассказывают они.

Основные элементы интерьера: открытые фактурные бетонные поверхности и отделка из дерева. Во всех помещениях системы хранения встроены в стены.

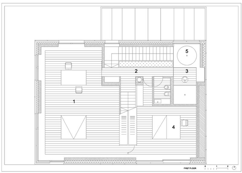
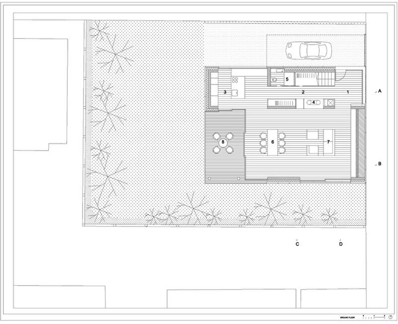
Пространство гостиной, столовой и кухни занимают большую часть первого этажа и выходят на заднюю террасу через большие стеклянные двери.

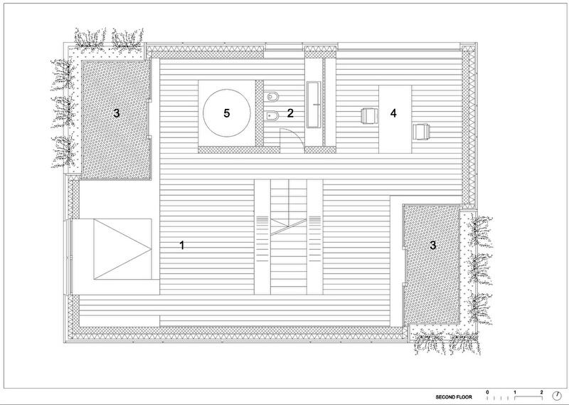
Верхние уровни свободно разделены на спальни и рабочее место. На втором этаже расположилось крытое джакузи.














Оцените статью
0 голосов

Читайте также

SFERALINE: комплексный подход к электроинфраструктуре объектов «под ключ»

SFERALINE: комплексный подход к электроинфраструктуре объектов «под ключ»

Рынок недвижимости Украины 2025: тенденции и возможность купить квартиру в Alliance Novobud

Рынок недвижимости Украины 2025: тенденции и возможность купить квартиру в Alliance Novobud

1
В Броварах стартовали продажи квартир финального дома жилого комплекса «Лесной квартал»

В Броварах стартовали продажи квартир финального дома жилого комплекса «Лесной квартал»

Поделитесь вашим мнением
0 комментариев
Купуй квартиру на Domik.ua
Широкий вибір квартир від власників, забудовників та ріелторів
Подробнее