Подать объявление

Food&Forest ресторан в лесу Украины

Food&Forest ресторан в лесу Украины
Проект загородного ресторана Food&Forest представили архитекторы Владимир Непийвода и Дмитрий Бонеско из киевской студии YOD Dеsign Lab.

Заведение общей площадью 600 м2 находится в самом сердце живописного леса села Сосновка Полтавской области и является частью отельно-рекреационного комплекса Relaxpark «Verholy». Это обстоятельство, собственно, и определило концепцию внешнего и внутреннего декора заведения: полная интеграция в окружающее природное пространство.

Так как главной задачей, которую ставит перед собой команда   YOD Design Lab,  является создание объектов, сохраняющих гармоничные связи человека с окружающей средой, заниматься проектом Food&Forest ей, как говорится, сам Бог велел.

Архитектурное пространство Food&Forest получилось чистым, не перегруженным лишними деталями, с большими витринными окнами и видом на окружающий лес. А все использованные в отделке материалы имеют натуральную основу – в основном это камень, дерево, медь, кортен, сланец и кожа.

«В оформлении интерьера использован архитектурный прием объединения фасада и интерьера за счет использования однотипных материалов, таких как камень габро и металл кортен. Это сделано для того, чтобы максимально объединить пространство внешней среды с интерьером», – рассказывают в YOD Design Lab.

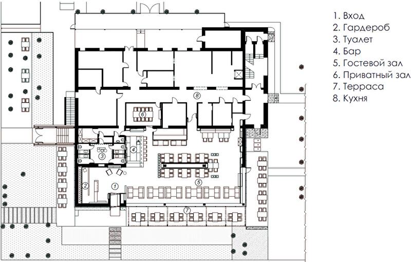
Ресторан расположен на первом этаже отдельно стоящего здания (на втором этаже расположен конференц-зал). Его основной зал зонирован большим газовым камином и включает в себя четыре основные зоны.

В первой зоне с низкой диванной посадкой сквозь большие витринные окна можно полюбоваться прекрасным видом на лес. Это пространство декорировано деревянными столами, диванами с деревянными ножками и торшерами на деревянных стойках испанской фабрики Marset.

Во второй зоне, расположенной по обе стороны камина, теплую уютную обстановку разбавляет индустриальный акцент ламп без плафонов на металлических углах.

Третья зона с большими комфортными креслами расположена возле кондитерского цеха, здесь посетители ресторана могут наблюдать за рабочим процессом изготовления сладостей. Кондитерский цех и витрина с готовыми изделиями расположены за стеклянной перегородкой.

Четвертая зона высокой посадки расположилась сразу в двух местах – в зоне бара и зоне коммунального стеллажа с экспозицией продукции ресторана.

Также в ресторане предусмотрен приватный зал, его украшает большой стол с цельной столешницей из дуба, а стены облицованы африканским камнем Artesia.

Food&Forest предназначен как для гостей, проживающих в отельном комплексе, так и для посетителей, которые решили просто приятно провести время на природе.

Оцените статью
0 голосов

Читайте также

SFERALINE: комплексный подход к электроинфраструктуре объектов «под ключ»

SFERALINE: комплексный подход к электроинфраструктуре объектов «под ключ»

Рынок недвижимости Украины 2025: тенденции и возможность купить квартиру в Alliance Novobud

Рынок недвижимости Украины 2025: тенденции и возможность купить квартиру в Alliance Novobud

1
В Броварах стартовали продажи квартир финального дома жилого комплекса «Лесной квартал»

В Броварах стартовали продажи квартир финального дома жилого комплекса «Лесной квартал»

Поделитесь вашим мнением
0 комментариев
Купуй квартиру на Domik.ua
Широкий вибір квартир від власників, забудовників та ріелторів
Подробнее