Подать объявление

Как оформить кухню-гостиную: проект Марины Саркисян

Как оформить кухню-гостиную: проект Марины Саркисян
Минимализм необязательно должен быть строгим и холодным. Оттенки сливок и шоколада, пудровая нежность текстиля и плавные линии сделают интерьер уютным и теплым – без лишних украшений.

Содержание

В нижнем, «гостевом» уровне квартиры-студии собраны в одном пространстве домашний очаг с холодильником и гарнитуром, удобная гостиная, столовая и прихожая. В интерьере точно таким же образом сочетаются шик и простота, салонные манеры и деревенская непринужденность. О том, как все это совместить в одном проекте, рассказывает автор – Марина Саркисян.

Заказчики и пожелания

Хозяева квартиры – семейная пара с двумя детьми: девочке 14 лет, мальчику всего 3 года. Глава семьи занимается бизнесом, мама в прошлом банковский работник, а теперь занимается домом и детьми и много времени планирует проводить в обновленном доме. Молодая хрупкая женщина, внешне похожая на парижанку – вот такие ассоциации у меня возникли при взгляде на хозяйку дома, и я решила, что интерьер кухни-гостиной должен стать продолжением ее образа. И при этом местом, где будет комфортно каждому жильцу этой квартиры. 

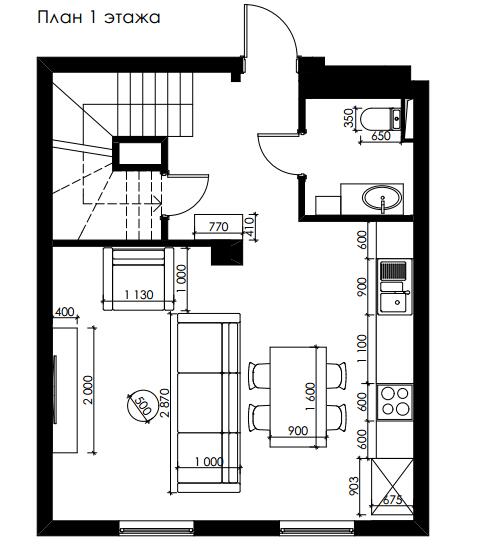
Заказчики изначально видели интерьер в минималистическом стиле, но при этом хотели мягкости и уюта. Кроме того, необходимо было создать на первом этаже единое пространство, которое представило бы дом «лицом» и вместило в себя кухню-гостиную, холл и лестницу на второй этаж. 

Перепланировка

Квартира свободной планировки, перегородок в ней не было. Сложностей с новым планом первого этажа не возникло: кухня-гостиная размещается на 1 уровне квартиры и отделена новыми стенами от прихожей с лестницей и санузла. Осталась видимой несущая балка, но она обыграна с помощью отделки и аксессуаров.

Отделка 

Стены по проекту я предлагаю отделать декоративным кирпичом – это модный прием, характерный для стиля «лофт», различных вариаций кантри и прованса. Но в этой квартире он будет аккуратно уложен и гладко окрашен: его фактура служит лишь легким намеком на то, что вокруг сельская местность. 

Ожидаемый контраст рельефной кирпичной поверхности создадут ровные окрашенные стены. Для пола планируется массивная доска в «диванной» зоне и широкие плиты керамогранита в половине, отведенной под кухню и столовую. «Водораздел» между покрытиями проходит точно посередине.

Хранение

В зоне гостиной используется модульная система из двух длинных пеналов и тумбы-подиума. Конфигурацию модулей можно менять, но предложенный вид будет выгодно подавать разницу фактур (темное дерево торцов и белые глянцевые фасады) и увеличивать помещение зрительно. 

В холле стоит (пока что в проекте) небольшой комод, его видно из гостиной, можно хранить в нем какие-то нужные мелочи. 

Гарнитур, вытянутый вдоль стены в одну линию, вместит все необходимые на кухне предметы. Большой холодильник спокойного серого или серо-коричневого цвета станет элегантным акцентом.

Свет

Помещение может быть освещено с помощью местных светильников, а может быть залито светом, но очень равномерно – и свет не будет в этом случае «бить по глазам». 

Главная роль в создании торжественного и одновременно уютного ощущения принадлежит модульной люстре Vibia Ameba – ее придумал дизайнер Пит Санс. Волнистые линии плафонов комплементарны друг другу, как пазлы – светильников в реальности может быть больше или меньше, чем в проекте, люстра собирается из модулей, как конструктор. 

Мягкое, но мощное свечение над обеденным столом дополняется подсветкой кухни – с потолка и в рабочей зоне. Эту «половину» помещения можно отключить – и наслаждаться камерным освещением в зоне гостиной. На выбор – потолочный свет из встроенных светильников и торшер над диваном.

Также из гостиной виден (и может использоваться) подвесной светильник в холле и бра на стене – это тоже дизайнерские приборы с плавными, завораживающими очертаниями.

Цвет и форма 

Цветовая палитра – сливочные, пудровые оттенки в сочетании с серым и цветом горького шоколада. При этом все формы прямые, сдержанные, они никак не продолжают сентиментальное настроение, заданное цветом. 

В интерьере нет ничего лишнего, только все самое необходимое. Тем заметнее украшения, линии которых неслучайны: зеркало в раме из скрещенных веток, скульптурная композиция в виде дерева в прихожей. Интерьер смягчают мягкие формы дивана, текучие линии зеркал в холле.

Мебель

 

Вся мебель в проекте – как дорогой гардероб стильной леди: каждый предмет выглядит изысканно, но не выбивается из общей композиции. Кухня, с фигурной линией верхних фасадов, подсветкой и глянцевым блеском отделки, словно отодвигает стену вдаль, в перспективу. Серый диван с меланжевой обивкой смотрится непринужденно, настраивая на отдых; стеклянный столик на стальной изогнутой ноге – образец современного дизайна и отличного вкуса. 

Декор и текстиль

В комнате минимум и декора, и текстиля – что для минимализма вполне естественно. Кроме изысканного зеркала, кирпичную кладку в гостиной украшают постеры с черно-белой графикой, а обеденный стол – скульптурная керамика. 

Шторы из белой вуали и плотного серого полотна подвешены высоко, почти под потолком, и закрывают как окна, так и расположенные над ними части стены: ткань лежит прямо на кирпичной кладке, создавая символичный контраст брутальности и нежности. 

Стиль

Минимализм, о котором мечтали заказчики, наполнен мягкостью линий, свечением всех оттенков серого и белого. Теплота древесины и шероховатая фактура кирпича напоминают о лофте и скандинавском стиле, но только слегка. Симметрия окон, подчеркнутая зеркалом, отсылает к ар-деко и неоклассике – но это тоже только намек. Таким образом, в проекте получился спокойный лаконичный интерьер, который при всей своей простоте содержит много современных и исторических художественных цитат. 

Сложности и сроки

Мы только что начали работу над реализацией проекта. Планируем уложиться в несколько месяцев. Особых сложностей не ожидается. 

Планировка

Оцените статью
0 голосов

Читайте также

SFERALINE: комплексный подход к электроинфраструктуре объектов «под ключ»

SFERALINE: комплексный подход к электроинфраструктуре объектов «под ключ»

Рынок недвижимости Украины 2025: тенденции и возможность купить квартиру в Alliance Novobud

Рынок недвижимости Украины 2025: тенденции и возможность купить квартиру в Alliance Novobud

1
В Броварах стартовали продажи квартир финального дома жилого комплекса «Лесной квартал»

В Броварах стартовали продажи квартир финального дома жилого комплекса «Лесной квартал»

Поделитесь вашим мнением
0 комментариев
Авторський канал ріелтора в Іспанії
Знайомтесь з Бенідормом, нерухомістю та стилем життя. Новобудови регіону, аналітика, інвестиції
Подробнее
+34624407828xxxx