Подать объявление

Как сделать перепланировку в однокомнатной квартире

Как сделать перепланировку в однокомнатной квартире
Представим себе следующую ситуацию: молодая семья (муж, жена и дочь, которой 5 месяцев) вложила деньги в строительство средней типовой однокомнатной квартиры: 45 кв. метров, 16-й последний этаж, электроплита.

Эта семья обратилась в наш он-лайн журнал о строительстве ProfiDom.com.ua , с просьбой посоветовать, как оптимально перестроить однокомнатную квартиру. Задача нам досталась нелегкая, потому, что отсутствуют площади для «перекраивания».

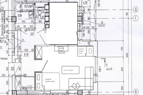
Представляем ниже ход наших размышлений. Вот,  чертеж этой  квартиры, полученный от проектировщиков.

Задача стоит такая: сделать проживание молодой семьи с ребенком комфортным для жизни на 5-7 лет. Срок такой установлен – чтобы выплатить кредит и собрать  деньги на трехкомнатую, например.

Какие варианты? Можно  немного пренебречь ценностью кухни как отдельного помещения и придумать вариант кухни-гостиной. Кроме того, обязательно нужен ортопедический матрас, либо кровать, либо подиум, либо ниша, либо откидная кровать-шкаф.

После серьезных размышлений, мы решили, что для ребенка необходимо помещение с дверью, поэтому хочется и сделать детскую. Одновременно, можно  сделать совмещенный санузел.

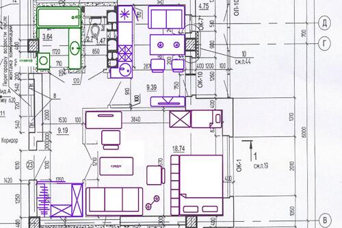
Сначала, мы пришли к такому варианту:

Хозяева квартиры долго думали, потом отвергли его. Решили, что дорогостоящую перепланировку делать не нужно, если они собираются через 5-7 лет покупать трехкомнатную квартиру.

Тогда начинаем расставлять мебель в различных вариантах.

Вариант 1.  Кухня в одну линию по стене напротив окна. Диванчик, чтобы можно было кухню иногда использовать не только для готовки. Отгороженная стеллажом кровать и детская кроватка напротив.

Вариант 2.  Кухня буквой Г к окну. Кровать отгорожена стеллажом. Детская кроватка у входа.

Вариант 3.  С откидной кроватью и детским спальным местом в нише.

Чтобы выглядело, примерно так:

Плюс в том, что больше свободного пространства. В итоге, остановились на этом варианте.

Оцените статью
0 голосов

Читайте также

SFERALINE: комплексный подход к электроинфраструктуре объектов «под ключ»

SFERALINE: комплексный подход к электроинфраструктуре объектов «под ключ»

Рынок недвижимости Украины 2025: тенденции и возможность купить квартиру в Alliance Novobud

Рынок недвижимости Украины 2025: тенденции и возможность купить квартиру в Alliance Novobud

1
В Броварах стартовали продажи квартир финального дома жилого комплекса «Лесной квартал»

В Броварах стартовали продажи квартир финального дома жилого комплекса «Лесной квартал»

Поделитесь вашим мнением
0 комментариев
Авторський канал ріелтора в Іспанії
Знайомтесь з Бенідормом, нерухомістю та стилем життя. Новобудови регіону, аналітика, інвестиції
Подробнее
+34624407828xxxx