Подать объявление

Концептуальный дом из бывшей школы

Концептуальный дом из бывшей школы
Культовая кинолента южнокорейского режиссера Ким Ки Дука под названием «Весна, лето, осень, зима… и снова весна» вдохновила чешских архитекторов из дизайн-студии ORA на реновацию старинного помещения бывшей школы.

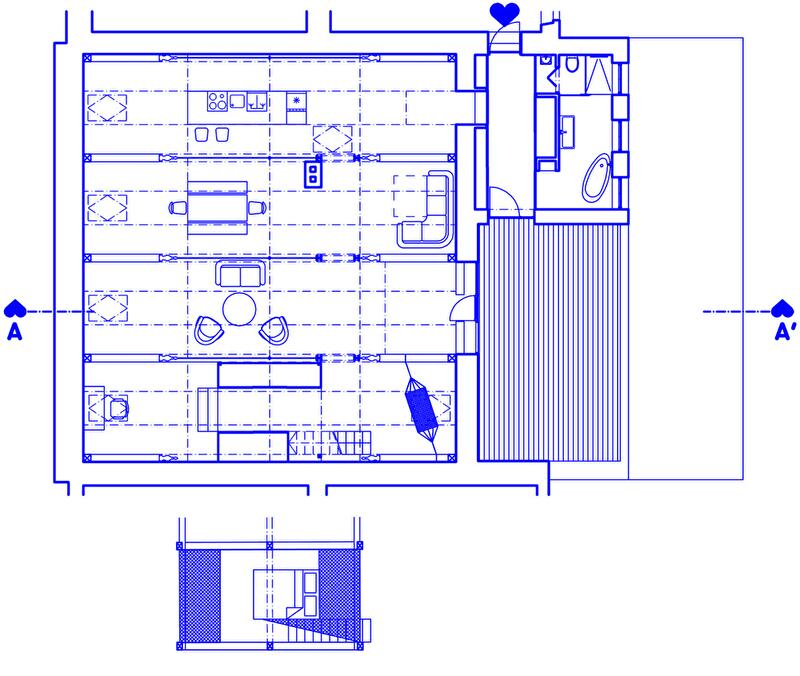
Открытое студийное пространство разделили стальными тросами на четыре невидимые комнаты, а вместо четырех «межкомнатных» дверей установили по портальной раме – такой же, как к в фильме великого мастера.

В распоряжение архитекторов попала мансарда бывшей школы, построенной еще в 19 веке. Учебное заведение находится в небольшом чешском городке Микулов в Южноморавском крае, известном не только своими уникальными ландшафтами и вином, но и богатым историческим наследием.

Интересно, что в свое время мансарды как таковой в здании не было, помещение школы состояло из одной большой аудитории для лекций. Возведение нового бетонного потолка и заодно чердачного помещения – дело рук пришедших местных коммунистических властей. В результате искусно вырезанная рама крыши была попросту замурована, а образовавшаяся в результате мансарда практически не использовалась, так как была абсолютно нефункциональной. Пространство бывшего зала для лекций, по словам архитекторов, было превращено в «нечто плоское и приплюснутое».

«Когда мы обнаружили это уникальное пространство, сразу же задались целью отыскать способ как сохранить статическую логику и атмосферу этого уникального помещения, не нарушить законы по охране наследия и, самое главное, создать удобное пространство для жизни», – вспоминают архитекторы Еник Хора (Jeník Hora) и Барбора Змекова (Barbora Zmeková) из ORA.

Все аутентичные элементы старинной школьной крыши ребята вернули в интерьер мансарды обратно и тщательно отреставрировали. С помощью толстых стальных тросов пространство в 140 м2 разделили на четыре одинаковые части. Так появились «невидимые» комнаты: кухня, гостиная, спальня и рабочий кабинет. Дверные проемы заменили на четыре подвесные портальные рамы – так они добились утонченной концептуальной аллюзии ворот на воде из фильма Ким Ки Дука «Весна, лето, осень, зима… и снова весна». Все это дополнили мебелью из светлого натурального дерева в лучших традициях восточного минимализма.

«Проект был сдан, и тут, как оказалось, начался самый сложный его этап – найти кого-то, кто соответствовал бы огромному студийному пространству. Мы могли сделать и «семейную» версию пространства, но это было бы слишком сложно. В конце концов, нашлись идеальные жители для этого концептуального дома. Они используют его в качестве летней резиденции, когда отдыхают в Чехии», – рассказали архитекторы.

«Бюджет проекта заставлял идти на компромисс в некоторых решениях по использованию более грубых аутентичных деталей в интерьере, которые и формировали основной концепт проекта. Но мы надеемся, что старинный дух помещения нам все же удалось сохранить», – подытожили они.






Оцените статью
0 голосов

Читайте также

SFERALINE: комплексный подход к электроинфраструктуре объектов «под ключ»

SFERALINE: комплексный подход к электроинфраструктуре объектов «под ключ»

Рынок недвижимости Украины 2025: тенденции и возможность купить квартиру в Alliance Novobud

Рынок недвижимости Украины 2025: тенденции и возможность купить квартиру в Alliance Novobud

1
В Броварах стартовали продажи квартир финального дома жилого комплекса «Лесной квартал»

В Броварах стартовали продажи квартир финального дома жилого комплекса «Лесной квартал»

Поделитесь вашим мнением
0 комментариев
Авторський канал ріелтора в Іспанії
Знайомтесь з Бенідормом, нерухомістю та стилем життя. Новобудови регіону, аналітика, інвестиції
Подробнее
+34624407828xxxx