Подать объявление

Квартира площадью 45 кв. метров типовой планировки

Квартира площадью 45 кв. метров типовой планировки
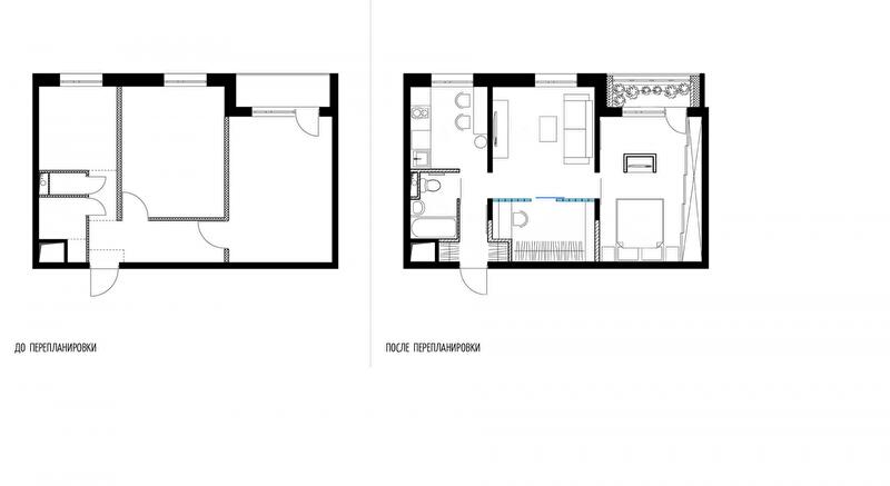
Эта квартира общей площадью 45 кв. метров принадлежит активной взрослой женщине. До ремонта пространство имело типовую планировку, после - интерьер оформили с учетом потребностей владелицы, которая работает в сфере красоты.

Так, после перепланировки был перенесен вход в спальню и снесена стена, которая разделяла коридор и большую комнату. Все это было сделано для того, чтобы выделить площадь под рабочий кабинет, в котором можно было бы легко поместить массажный стол и необходимое для косметолога оборудование. Перегородку было решено сделать из прозрачных стеклоблоков, поскольку они прекрасно пропускают свет (до 80%) и отлично скрывают, то, что происходит за ними. В интерьере много серого разбавленного желтым и розовым, первый – намеренно выбран дизайнерами, чтобы подчеркнуть зрелость пространства, с помощью желтого и розового добавили мягкость и немного инфантильности.   

Оцените статью
0 голосов

Читайте также

SFERALINE: комплексный подход к электроинфраструктуре объектов «под ключ»

SFERALINE: комплексный подход к электроинфраструктуре объектов «под ключ»

Рынок недвижимости Украины 2025: тенденции и возможность купить квартиру в Alliance Novobud

Рынок недвижимости Украины 2025: тенденции и возможность купить квартиру в Alliance Novobud

1
В Броварах стартовали продажи квартир финального дома жилого комплекса «Лесной квартал»

В Броварах стартовали продажи квартир финального дома жилого комплекса «Лесной квартал»

Поделитесь вашим мнением
0 комментариев
Авторський канал ріелтора в Іспанії
Знайомтесь з Бенідормом, нерухомістю та стилем життя. Новобудови регіону, аналітика, інвестиції
Подробнее
+34624407828xxxx