Подать объявление

Маленькая квартира: 40 метров для одного

Маленькая квартира: 40 метров для одного
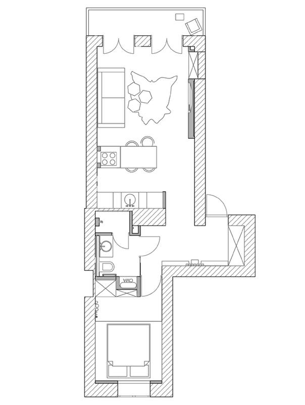
40 метров в доме дореволюционной постройки в самом центре старого Киева некогда были однокомнатной квартирой.

Архитектор Елена Фатеева сделала все возможное, чтобы в холостяцкой обители появилась отдельная спальня, а каждый метр использовался бы по максимуму.

Дом и его месторасположение задали настроение будущему интерьеру. В процессе капитального ремонта квартира сбросила многочисленные наслоения времени, открыв аутентичные строительные элементы. Все, что поддавалось реставрации, решено было оставить в качестве акцентов в новом интерьере: на стенах обнажили красивую кирпичную кладку, а в некоторых местах не стали прятать коммуникационные трубы. Отдавая дань духу старого города, на пол балкона и в прихожей положили плитку, имитирующую брусчатку.

Стоявшая перед архитектором задача – создание современного интерьера с элементами старины для жизни одного-двух человек – решалась не только с помощью декора. Важным моментом была максимальная функциональность помещений. В результате перепланировки на месте крошечной кухни (2,3 х 2,7 м) появилась спальная комната. И если для кухни метраж был унизительным, то в спальне как раз поместилось все необходимое – и комфортное место для сна, и встроенный шкаф для одежды. Чтобы максимально сохранить открытое пространство, здесь даже не стали прятать в стены трубы, придав им дополнительную функцию – вешалки для одежды. А кухню полностью перенесли в пространство гостиной, тем самым четко разграничив публичную и приватную зоны.

Чтобы кухня-столовая-гостиная была наполнена естественным светом, до предела увеличили оконные проемы, опустив их до уровня пола, а также заменили глухие балконные ограждения на полностью прозрачные – из стекла. В борьбе за полезные сантиметры и визуальную легкость в ванной также использовали стеклянные двери и перегородки. А в прихожей за оптическое расширение узкого и длинного коридора отвечают огромные зеркала.

Таким образом, ничто не осталось без внимания. Даже тихий уютный дворик за окном, который благодаря обилию прозрачных перегородок становится неотъемлемой частью интерьера, соединяя старое и новое, внешнее и внутреннее, прошлое и настоящее.

Оцените статью
0 голосов

Читайте также

SFERALINE: комплексный подход к электроинфраструктуре объектов «под ключ»

SFERALINE: комплексный подход к электроинфраструктуре объектов «под ключ»

Рынок недвижимости Украины 2025: тенденции и возможность купить квартиру в Alliance Novobud

Рынок недвижимости Украины 2025: тенденции и возможность купить квартиру в Alliance Novobud

1
В Броварах стартовали продажи квартир финального дома жилого комплекса «Лесной квартал»

В Броварах стартовали продажи квартир финального дома жилого комплекса «Лесной квартал»

Поделитесь вашим мнением

Комментарии посетителей

1 комментарий
Елена• 
2,3х2,7 - это крошечная кухня? :) Крошечная - это квадратов 4-5, а 6,21 - это уже более-менее, я бы сказала :) Маловато места, но хоть что-то можно разместить, еще и 2 человека в кухне готовить смогут.
0+2
Авторський канал ріелтора в Іспанії
Знайомтесь з Бенідормом, нерухомістю та стилем життя. Новобудови регіону, аналітика, інвестиції
Подробнее
+34624407828xxxx