Подать объявление

Мансарда с зеркальным потолком

Мансарда с зеркальным потолком
Супружеская пара, ценители искусства, переехали в один из самых престижных районов Штутгарта - на склоне холма, откуда открывается прекрасная панорама города в долине.

Интерьеры нового жилища должны были не только отражать их стремление жить в стильной обстановке, но и предоставить возможность разместить большую коллекцию арт-работ.

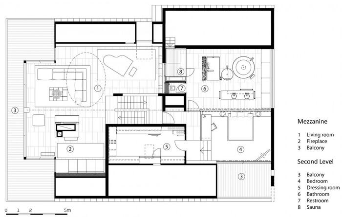
Апартаменты занимают просторное мансардное помещение в здании постройки 1980-х годов. Работая над проектом, дизайнеры стремились создать трехмерное, текучее пространство, используя зеркальные панели и глянцевую белую плитку для пола.

В зоне гостиной на наклонном своде потолка над диваном укрепили зеркальную панель, которая стала неким виртуальным окном в крыше. Кроме того, стоит отметить круглый "остров" с креслами между гостиной и кухней, окруженный сетчатой ширмой.

Оцените статью
0 голосов

Читайте также

SFERALINE: комплексный подход к электроинфраструктуре объектов «под ключ»

SFERALINE: комплексный подход к электроинфраструктуре объектов «под ключ»

Рынок недвижимости Украины 2025: тенденции и возможность купить квартиру в Alliance Novobud

Рынок недвижимости Украины 2025: тенденции и возможность купить квартиру в Alliance Novobud

1
В Броварах стартовали продажи квартир финального дома жилого комплекса «Лесной квартал»

В Броварах стартовали продажи квартир финального дома жилого комплекса «Лесной квартал»

Поделитесь вашим мнением
0 комментариев
Купуй квартиру на Domik.ua
Широкий вибір квартир від власників, забудовників та ріелторів
Подробнее