Подать объявление

Небольшая квартира: уютная современная классика в Днепропетровске

Небольшая квартира: уютная современная классика в Днепропетровске
Старинный жилой дом екатерининских времен стоит в тихой парковой зоне в самом центре Днепропетровска.

И красивое здание, и историческое место требовали особого подхода к созданию квартиры: с одной стороны, важно было подчеркнуть сложившуюся веками атмосферу, с другой – сделать жилье максимально комфортным для современной жизни. Пожеланием самих владельцев – взрослой семейной пары, уже вырастившей детей – была «уютная современная классика». Так что все совпадало.

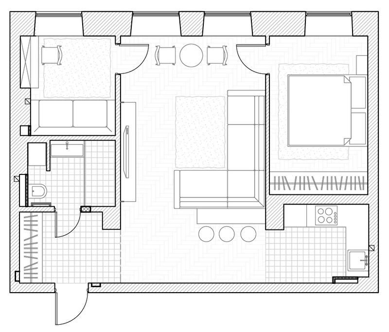
Когда SVOYA studio впервые увидели объект, здесь была двухкомнатная квартира с типичным «евроремонтом», в котором роскошные наследные потолки (4,2 метра!) превращали нарезку маленьких по площади помещений в тесные и узкие колодцы. Планировку полностью изменили, сделав вместо двух комнат неожиданно три: гостиную с небольшой кухней-нишей, спальню и отдельный кабинет со спальным местом. При этом за счет грамотных декораторских приемов ощущение колодцев безвозвратно ушло. Во-первых, визуально опустили потолки, не тронув их фактической высоты: покраска в сложный плотный цвет в сочетании с кессонами дала фактурную глубину и одновременно ограничила пространство, сделав его комфортным для восприятия. В то же время неоднородные белые стены (с зеркальными панелями и из крашеного МДФ), напротив, визуально расширили помещения. Кроме того, зеркальная панель в торце гостиной не только «удвоила» компактное пространство, но и добавила немного отраженного света в кухню-нишу и прихожую.

Освещение, кстати, стоит отдельного внимания – здесь это не только функция, но и украшение. Поскольку высота потолков ни в чем не ограничивала, была возможность вписать большую парадную люстру Zonca (в комплекте с бра) и стеклянные светильники-подвесы De Majo. Именно они в сочетании с кессонами и фактурными панелями, с фальшкамином (в реальности нишей под свечи), паркетом елочкой, вытянутыми дверными наличниками и радиальными узорами на зеркалах отвечают за классику в интерьере. Все остальное говорит на современном языке – языке эклектики. Например, контрастно и в то же время абсолютно гармонично на этом фоне смотрятся дизайнерский журнальный столик из среза дерева (SVOYA studio), складное кожаное кресло KARE design или винтажная барная стойка. А главное – здесь есть атмосфера, ради которой, собственно, все и перекраивалось.

Общая площадь 56 кв. м

Оцените статью
0 голосов

Читайте также

SFERALINE: комплексный подход к электроинфраструктуре объектов «под ключ»

SFERALINE: комплексный подход к электроинфраструктуре объектов «под ключ»

Рынок недвижимости Украины 2025: тенденции и возможность купить квартиру в Alliance Novobud

Рынок недвижимости Украины 2025: тенденции и возможность купить квартиру в Alliance Novobud

1
В Броварах стартовали продажи квартир финального дома жилого комплекса «Лесной квартал»

В Броварах стартовали продажи квартир финального дома жилого комплекса «Лесной квартал»

Поделитесь вашим мнением
0 комментариев
Купуй квартиру на Domik.ua
Широкий вибір квартир від власників, забудовників та ріелторів
Подробнее