Подать объявление

Видовая квартира в стиле metropolitan в Киеве

Видовая квартира в стиле metropolitan в Киеве
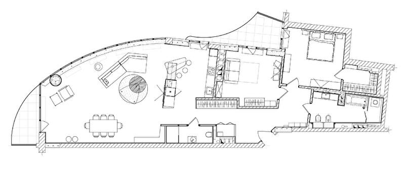
Видовая квартира в стиле metropolitan – одна из новых работ киевского архитектора Константина Орловского. Здесь много знаковых предметов современного дизайна, и не меньше – авторских ноу-хау, разработанных специально для этого пространства.

Практикующие архитекторы знают: любая проблема в работе с проектом – это хороший повод сделать нечто неординарное. Новый объект Константина Орловского может послужить отличной иллюстрацией. Специфика изначальной планировки спровоцировала целый ряд планировочных, конструктивных и эстетических разработок, сформировавших особенный характер этой квартиры. Например, чтобы увеличить площадь спален и в то же время увязать линии транзитов с новой архитектурой, в стены были встроены системы хранения – которые стали одной из главных «фишек» интерьера. Также нестандартного подхода к формированию интерьерной композиции требовала радиальная дуга в плане гостиной – практически полностью остекленная скругленная стена. Подход был найден: мебельные группы «оторваны» от стен и образуют автономные тематические зоны – столовую и диванную группы, комфортное место для чтения. Пришлось побороться также и за свет. В отличие от гостевой территории, где естественного освещения в избытке, удаленные вглубь квартиры помещения требовали дополнительных ресурсов. Так появились скрытые подсветки, деликатно рисующие пространство, и графичные светильники-линии, как будто указывающие направление движения.

Остроумной находкой в оформлении коридора, ведущего из прихожей в гостевую зону, стали фасады встроенной системы хранения. Нанесенный на них рельефный рисунок нивелирует монотонность четырехметрового шкафа, превращая его почти в арт-объект. Любовь к графике проявилась и в оформлении стен спальни – на них нанесен рисунок-печворк, состоящий из фрагментов множества орнаментов. Неожиданный паттерн интригует и привносит слегка богемное настроение в сдержанный, по-скандинавски монохромный интерьер спальни.

Общая площадь 155 кв. м

Оцените статью
0 голосов

Читайте также

SFERALINE: комплексный подход к электроинфраструктуре объектов «под ключ»

SFERALINE: комплексный подход к электроинфраструктуре объектов «под ключ»

Рынок недвижимости Украины 2025: тенденции и возможность купить квартиру в Alliance Novobud

Рынок недвижимости Украины 2025: тенденции и возможность купить квартиру в Alliance Novobud

1
В Броварах стартовали продажи квартир финального дома жилого комплекса «Лесной квартал»

В Броварах стартовали продажи квартир финального дома жилого комплекса «Лесной квартал»

Поделитесь вашим мнением
0 комментариев
Купуй квартиру на Domik.ua
Широкий вибір квартир від власників, забудовників та ріелторів
Подробнее