Подать объявление

Живописный лофт дома в Киеве

Живописный лофт дома в Киеве
Для тех, кто считает просторные помещения в стиле лофт не слишком пригодными в качестве истинно «домашнего» жилья, предлагаем познакомиться с новым проектом Н4 от киевской архитектурно-дизайнерской студии He.D creative group.

Умело используя текстильные акценты и живописные холсты больших форматов, архитектор Евгений Глуговский и дизайнер Дарья Лобань создали практичный и удобный жилой интерьер для супружеской пары средних лет.

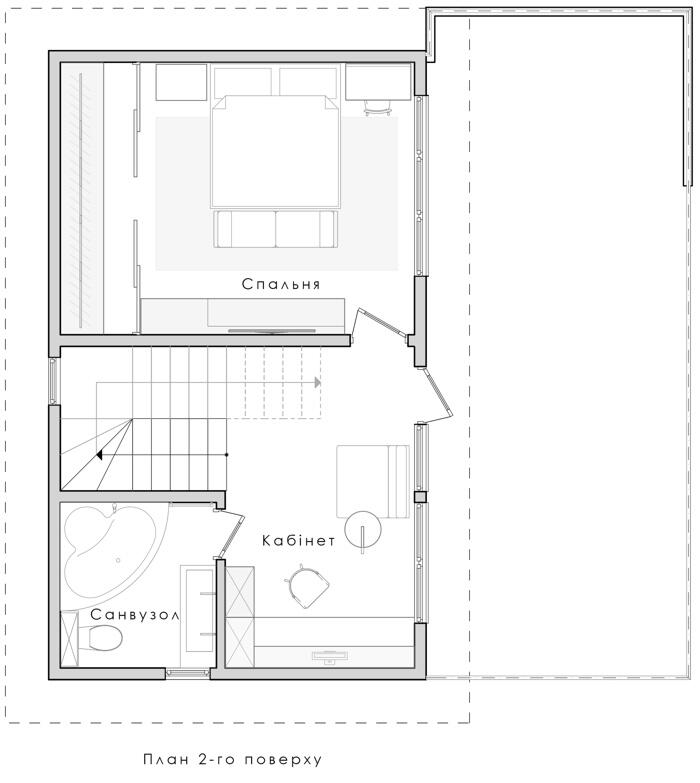
Двухэтажный дом общей площадью 170 кв. м находится в Дарницком районе Киева. Заказчиком является супружеская пара средних лет, ведущая активный образ жизни: много работает и, соответственно, очень ценит хороший отдых.

Также с ними проживает бабушка – мама заказчика. Для нее была смоделирована комната на первом этаже, немного отличающаяся от всех остальных по стилю. Поскольку бабушка любит вязать и вышивать, в ее комнате было предусмотрено несколько специальных зон для приятного времяпровождения за рукоделием.

В этой семье любят вкусно готовить и устраивать дружеские посиделки с задушевными разговорами, поэтому без объединений кухни и гостиной здесь, разумеется, не обошлось. Изолированными получились разве что две спальни, санузлы и подсобные помещения.

Так как заказчики связались с  командой He.D creative group  в момент начала строительства, особой необходимости в перепланировке у архитекторов не возникло – они смогли заложить все необходимое в конструктивные особенности постройки.

По словам творческой команды He.D creative group, в качестве вдохновения в работе с проектом для них послужила цитата французского поэта и философа Поля Валери: «Живопись позволяет увидеть вещи такими, какими они были однажды, когда на них глядели с любовью».

«Этот дом мы скорее не проектировали, а писали, как картину. В нем очень много жизни, есть своя история. Мы попытались создать пространство, где не будет чувствоваться время, а каждый из членов семьи сможет найти себе укромное местечко», - рассказывает архитектор Евгений Глуговский.

Стиль интерьера можно определить как «уютный лофт», где на контрасте совмещены холодные отделочные материалы вроде бетона, металла и камня с теплым тоном текстуры дерева, мягким текстилем и приятным ненавязчивым освещением. К слову, освещение дизайнеры разработали разноплановое: от яркого и активного до приглушенного и спокойного. Все цветовые контрасты в интерьере связаны между собой нейтральными переходами, а основную роль в декоре играют большие живописные холсты.

«Дизайнер работал над проектом, как живописец над своей картиной. Так как на полотне вы не найдете двух одинаковых мазков, так и в этом интерьере все дополняет, перетекает, смешивается и создает неповторимую ритмику стиля», - объясняют в He.D creative group.

В проекте Н4 использовались: диван в гостиной Flexform, журнальный столик в гостиной Phase Design, барные стулья Andreu World, приставной столик к дивану в гостиной Boconcept, торшер в бежевой спальне Serge Mouille, торшер в бетонной спальне Firefly, торшер в кабинете Oluce Coupe 3321, подвесы над кроватью в бежевой спальне Jangir Maddadi, кресло в кабинете Saba Italia, модуль дивана в кабинете B&B Italia, бра над ТВ в гостиной Faro Alli, керамическая плитка Graniti Fiandre, полотенцесушитель Zehnder Yucco, двери Rimadesio link.

Оцените статью
0 голосов

Читайте также

SFERALINE: комплексный подход к электроинфраструктуре объектов «под ключ»

SFERALINE: комплексный подход к электроинфраструктуре объектов «под ключ»

Рынок недвижимости Украины 2025: тенденции и возможность купить квартиру в Alliance Novobud

Рынок недвижимости Украины 2025: тенденции и возможность купить квартиру в Alliance Novobud

1
В Броварах стартовали продажи квартир финального дома жилого комплекса «Лесной квартал»

В Броварах стартовали продажи квартир финального дома жилого комплекса «Лесной квартал»

Поделитесь вашим мнением

Комментарии посетителей

1 комментарий
хаски• 
Очень приятная работа и красивые картины.
0+3
Авторський канал ріелтора в Іспанії
Знайомтесь з Бенідормом, нерухомістю та стилем життя. Новобудови регіону, аналітика, інвестиції
Подробнее
+34624407828xxxx