Оренда офісу 100 м², Шовковична вул., 42/44
Створено 20 червня 2017, оновлено 05 квітня
Код оголошення 7325932
Оренда офісу
| Лінія будівель | Перша | |
| Поверх | 5 | |
| Загальна площа | 100 м² | |
| Оздоблення | Типовий ремонт | |
| Наявність меблів | Без меблів | |
| Додатково | Наявність охорони, Автономне опалення, Паркінг, Кондиціонер(и), Сигналізація, Без комісійних | |
| Парковка | Наземна, Підземна | |
| Матеріал стін | Керамічна цегла | |
| Поверхів в будинку | 14 | |
| Висота стель | 3 м | |
| Тип будівлі | Бізнес-центр | |
| Клас будівлі | B+ | |
| Термін оренди | Тривалий | |
| В ставку включені | Комунальні витрати, Експлуатаційні витрати | |
| Тип оренди | Пряма оренда |
Інформація
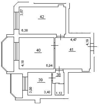
Пропонується офісне приміщення в бізнес-центрі на вулиці Шовковичній 42\44. Планування – 3 кабінети, приймальня, міні – кухня. У БЦ цілодобова кваліфікована охорона та система карткового доступу, підземний паркінг, стоянки, надійне інженерне забезпечення. Неподалік метро Палац Спорту. Є інші варіанти площ. Вартість 30 доларів за м.кв. включає ПДВ, комунальні, експлуатаційні витрати. Спеціальні умови на період дії війського стану Офіс в Horizon Office Towers – це комфортні та якісні умови для розвитку Вашого бізнесу. Пропозиція без комісії. Телефонуйте
Є інформація, яку ви хочете повідомити?
Розташування
АдресаКиїв, Шовковична вул., 42/44
Найближчі станції метроПалац Спорту, Кловська, Хрещатик, Майдан Незалежності, Театральна
Найближчі орієнтири:Меморіальний парк академіка О. О. Богомольця, Парк "Міський сад", Хрещатий парк, Маріїнський парк, Парк ім. Шевченко
Loading map...
Київ, Шовковична вул., 42/44
Народний рейтинг будинку
Палац Спорту – 9 хв.
GPS-координати
50.440353566 30.526578949
Характеристики будинку
Матеріал стін
Керамічна цегла
Поверхів в будинку
14
Висота стель
3
Написати власнику

Оренда офісів поруч
Авторський канал ріелтора в Іспанії
Знайомтесь з Бенідормом, нерухомістю та стилем життя. Новобудови регіону, аналітика, інвестиції
Детальніше